Ir directamente al contenido
El Mirador de Laura
Decoración con buen Feng Shui
Estilismo DECO online
Blog
Interiorismo
Feng Shui
DIY
Orden y Limpieza
Terrazas y jardines
Celebraciones
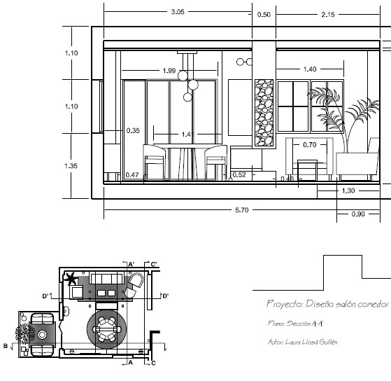
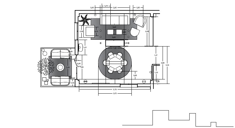
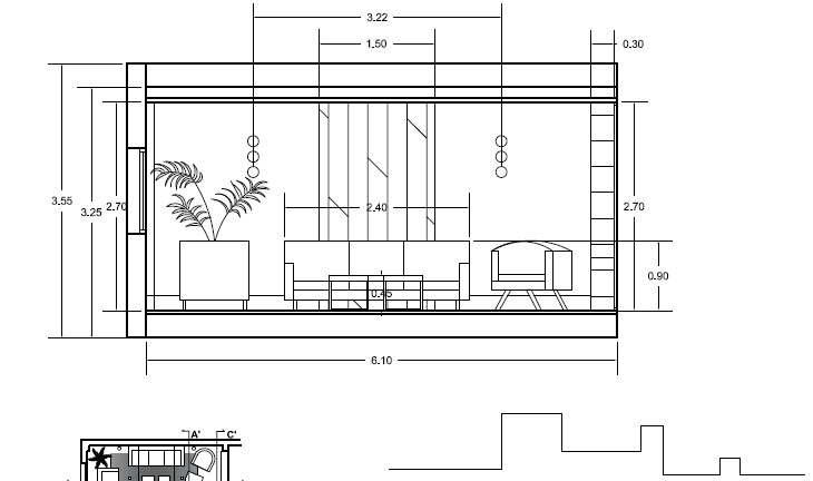
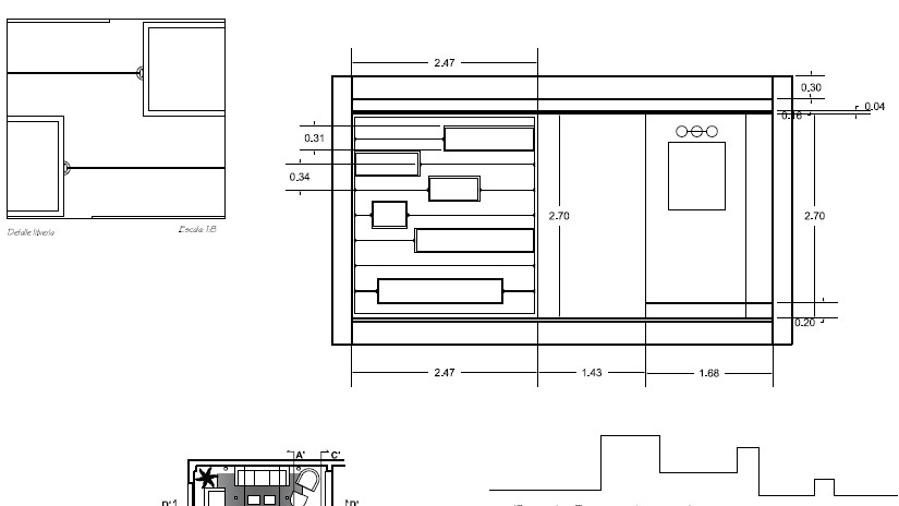
Salón comedor con terraza
¿Quieres que te ayude con la decoración de tu casa?
Estos son mis servicios online
Lau Llogui
23 marzo, 2023
Deja un comentario
Cancelar la respuesta
Δ
Privacidad y cookies: este sitio utiliza cookies. Al continuar utilizando esta web, aceptas su uso.
Para obtener más información, incluido cómo controlar las cookies, consulta aquí:
Política de cookies
Cargando comentarios...
Escribe un comentario...
Correo electrónico (Obligatorio)
Nombre (Obligatorio)
Web
Comentar
Suscribirse
Suscrito
El Mirador de Laura
Únete a otros 162 suscriptores
Suscríbeme
¿Ya tienes una cuenta de WordPress.com?
Inicia sesión
.
El Mirador de Laura
Suscribirse
Suscrito
Regístrate
Iniciar sesión
Copiar enlace corto
Denunciar este contenido
Ver la entrada en el Lector
Gestionar las suscripciones
Contraer esta barra
Deja un comentario