Como sin concepto no hay proyecto, así se llama el Trabajo Final de Máster que he hecho con la Escuela Madrileña de Decoración en convenio con la Universidad Europea. El estilo que me asignaron fue el minimal y a continuación os lo explico.
El cliente es una familia formada por un hombre y una mujer, con una hija. Él tiene 40 años y es profesor de deportes acuáticos. Le encanta el mar. Su imprescindible es una ducha exterior y almacenaje para guardar el material deportivo.
Ella tiene 42 años y es artista, aunque estudió psicología. Le encantan los colores iridiscentes que utiliza en sus obras y que van a servir de inspiración al proyecto. Su imprescindible es tener un taller donde dar clases de pintura y que parte de la vivienda, se pueda convertir en una sala de exposiciones eventual.
Su hija tiene 4 años y de mayor quiere ser astronauta. Su dibujo animado favorito es la sirenita y su imprescindible es una habitación donde se pueda quedar a dormir su mejor amiga.
A los clientes se les realizó un cuestionario y de ahí se extrajeron las instrucciones para el proyecto.
- La pareja ha heredado este antiguo garaje y lo quieren convertir en una vivienda / taller / sala de exposiciones.
- Los dos miembros de la pareja tienen trabajos que les encantan y les dedican muchas horas, por lo que la vivienda deberá adaptarse a ellos. Al estar en Barcelona y junto al mar, reciben visitas de amigos y familiares y, por ello, quieren disponer de una habitación de invitados que, mientras no se use, pueda ser un despacho.
- Quieren conseguir una vivienda fresca y alegre y que no pase desapercibida. Por ello, se ha optado por superficies iridiscentes y translúcidas, para crear una magia visual y mantener en una curiosidad y un asombro constantes.
- El estilo decorativo con el que se sienten mas identificados es el Minimalista, con toques de color tornasolados (como las obras de ella) para darle potencia y personalidad al espacio.
Además de tener en cuenta todos estos datos para realizar el proyecto, me he inspirado en una de las obras de ella, ya que no hay nada más sencillo y tranquilo que la línea del horizonte y cómo van cambiando los tonos según refleja la luz en el mar y en el cielo.

La vivienda va a ser cambiante, no solo por los materiales empleados y como refleja la luz en ellos, sino también por el mobiliario que irá adaptándose a las necesidades de los propietarios.
El antiguo garaje a convertir en vivienda, se encuentra situado en el barrio Gótico de Barcelona, en un patio de manzana de un edificio de viviendas.


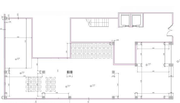
A continuación paso a mostrar los planos del estado actual. Como se puede observar, se trata de un espacio diáfano con salida a dos calles y un espacio semi exterior a modo de patio. Dispone de varios lucernarios que se pueden reducir en tamaño o eliminar, pero no hacer más grandes. Otro condicionante son las diferentes cotas del pavimento, que si se puede recrecer, pero no excavar.

La inspiración para realizar el proyecto la muestro en los siguientes moodboards. Uno de arquitectura y formas minimalistas, con alguna obra de Calatrava y esta silla de vidrio.

Otro con colores iridiscentes que salen de los reflejos de agua del mar, cuarzos, medusas o escamas de pez.

También he hecho un moodboard físico, con materiales y texturas, que provienen de muestras que he solicitado a fabricantes como Orac y Cosentino, cristales, papeles tornasolados o incluso una rama pintada con spray plata que hace el efecto de un tronco de deriva.

La entrada a la vivienda y al taller, se realizará desde el patio del edificio. Esta pared estará decorada con la obra de arte de la propietaria que ha servido de inspiración al proyecto.

No hay nada más minimalista y tranquilo que el horizonte y como va cambiando de color según la luz. Por este motivo, el agua va a ser el elemento principal y se va a instalar una piscina en la planta primera con el vaso trasparente, que se introduce en el techo del salón de la planta baja. El efecto será como cuando las gotas de lluvia se cruzan con el sol, produciéndose el arcoíris.

El acceso a la planta superior donde se encuentran el dormitorio principal y el de la niña, se realizará a través de una escalera volada, adosada al cristal del patio interior.

El dormitorio de invitados y su baño, estará junto al patio interior. Será acristalado y dispondrá de un estor tipo screen, oculto en la moldura, para dar privacidad. Además, la cama será abatible con almacenaje a los lados, para que cuando no hayan invitados, se pueda utilizar como despacho.

El baño del dormitorio principal será abierto y tendrá un lavabo y un tocador. La bañera se verá desde la cama y sobre ella habrá una chimenea y un televisor.
La fachada será un muro cortina ondulado, imitando las olas del mar y con cristal tornasolado.
Del techo del taller colgarán plaquitas iridiscentes, que al moverse con el aire, crearán un efecto muy chulo.

Sobre una base blanca, se colocará mobiliario tornasolado que cree efectos mágicos y momentos lumínicos irrepetibles. La incidencia de la luz en el cristal creará auroras boreales de «estar por casa», reflejos domésticos que dan lugar a paisajes nuevos cada día.

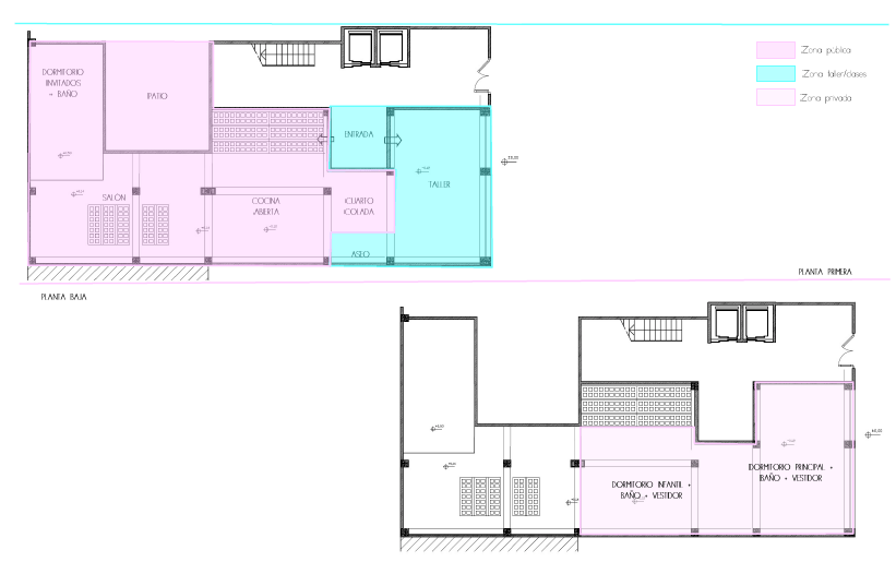
He zonificado la vivienda de la siguiente manera:
- En planta baja, tenemos la zona pública que incluye por un lado el taller y por otro el salón, la cocina y el dormitorio de invitados, entre otros.
- En la planta superior tenemos el dormitorio principal con su vestidor y baño en suite, además del dormitorio infantil, también con su baño.

Al tratarse de un espacio tan diáfano, básicamente se van a demoler las fachadas que dan a las calles para realizar un cerramiento de muro cortina, las que dan al patio interior y dos huecos en el patio del edificio para acceder a la vivienda y al taller. Los lucernarios se mantienen, pero se modifica su forma.
Con todo esto, la distribución queda de la siguiente manera:

Desde el patio del edificio, accedemos al taller, con su zona de asientos, la mesa pez que he diseñado para que los alumnos trabajen y una zona de almacenaje y proyector. En la cola se situará la profesora. También disponen de una zona de aseo con dos lavabos y un inodoro cerrado.
Por el otro lado, accedemos al amplio recibidor de la vivienda, con acceso directo al patio interior, pero también a una zona de vestidor y cuarto de la colada. Desde el patio accedemos a la piscina en la planta superior o al dormitorio de invitados con su propio baño. Tiene una cama abatible para que cuando no se use, sirva de estudio y sala de lectura. En la planta de día, también se ubica una amplia cocina abierta al salón, con zona de estar con chimenea y para ver cine con un proyector que se esconde cuando no se use.
Como he comentado al principio, una de las premisas del proyecto, es que se pudiera transformar en sala de exposiciones. Para ello, se va a sectorizar la vivienda de la siguiente manera. Al abrir la puerta principal, hará tope con un paraban de formas onduladas y que, junto con la puerta del patio interior, bloqueará el paso de los visitantes a la cocina y los guiará por este hacia el “estudio”, cuya puerta se abre hacia fuera, bloqueando así el acceso a las escaleras que suben a la zona privada. El recorrido continua por el salón y finaliza en la cocina que, gracias a su diseño, ocultará su función. De todas las paredes colgarán las obras de la artista.

En la planta primera se encontrará la zona privada con el dormitorio principal y su vestidor y baño en suite. Además del dormitorio infantil con baño incorporado. Tanto desde este último como desde el vestidor del dormitorio principal, hay acceso a un conducto para depositar la ropa sucia y que llegue a la planta inferior donde se encuentra el cuarto de la colada.
En la planta superior, también se encuentra la zona de la piscina a la que se puede acceder tanto desde el patio interior, como desde la misma planta.
En próximos posts te enseñaré los renders (imagenes en 3D) que he hecho con Sketchup de cada una de las estancias.
Pero si no puedes esperar, aquí te dejo el video completo de mi presentación.
¡Espero que te haya gustado!

Suscripción al blog + mini guía Feng Shui
Si te gusta la decoración y quieres que tu casa tenga buen Feng Shui, suscríbete al blog y recibe una mini guía deco Feng Shui ¡GRATIS!
Y, si quieres, también puedes seguirme en mi Instagram 🙂







Deja un comentario