A continuación te explico uno de mis últimos proyectos realizados online y te muestro la documentación que recibe el cliente. En este caso se trata de la renovación de un salón comedor y el recibidor que se encuentra en la misma estancia.

Con las respuestas al cuestionario que os pido que me relleneis y con los otros datos aportados, realizo un perfil de cliente que va a servir como base para desarrollar el proyecto.
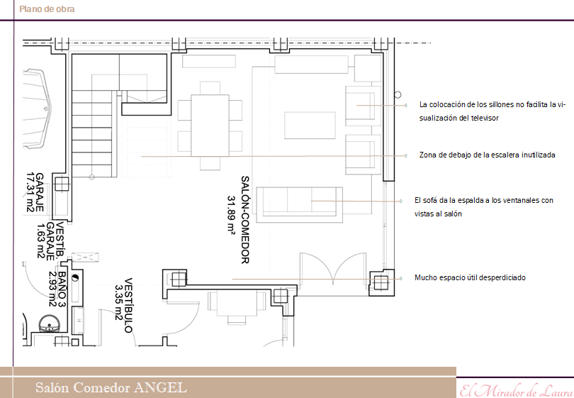
Estado actual
En este caso el propietario contaba con el plano original de la casa. Así que, sobre la distribución inicial, marqué las no conformidades de la estancia.

Con las imágenes facilitadas por el cliente, me puedo hacer una idea de las virtudes y deficiencias de la estancia y con mi propuesta voy a intentar resaltar las primeras y corregir las segundas.

Estado reformado
Si el cliente solicita un cambio en la distribución, realizo un plano en Autocad con la nueva distribución. En ella tengo en cuenta las recomendaciones para tener un buen Feng Shui.

También los diferentes alzados de la estancia, de manera muy esquemática, para que se puedan entender por cualquier persona.




Moodboards
De cada uno de los alzados de la habitación, realizo un tablero de inspiración donde se visualiza el conjunto renovado con el mobiliario, textiles, papeles y luminarias reales.




Lista de la compra
Por último, adjunto un listado detallado con cada uno de los elementos del diseño y los enlaces a la tienda online donde puedes adquirirlos. Además, te propongo en muchos casos reutilizar algunos muebles u objetos decorativos y la manera de hacerlo tu mism@.





¿Que te ha parecido este proyecto online? Si quieres que te ayude a decorar alguna estancia de tu casa, estaré encantada. Aquí puedes ver mis servicios.
¡Feliz día!

Suscripción al blog + mini guía Feng Shui
Si te gusta la decoración y quieres que tu casa tenga buen Feng Shui, suscríbete al blog y recibe una mini guía deco Feng Shui ¡GRATIS!
Y, si quieres, también puedes seguirme en mi Instagram 🙂


Deja un comentario